• Bezeichnung: Gewerbepark "Hasenheide" - Neubau moderner Hallen für Produktion, Lager und Büro
  • Adresse: Gutberletstraße, 04316 Leipzig
  • Lage: Gewerbegebiet
  • Objektart: Produktionshalle, Lagerhalle, kombinierte Hallen- und Bürofläche, Sonstige
  • Lagebeschreibung: Der Standort Leipzig bietet ein großes Einzugsgebiet und sehr gute Infrastruktur. Große Industrieunternehmen wie die Messe und den Flughafen, viele Zulieferer, KMU-Betriebe und Dienstleister haben sich angesiedelt.
    Mit der Entstehung des Gewerbepark „Hasenheide“ bieten wir Betrieben die Möglichkeit, ihre Produktion in den eigenen, auf sich zugeschnittenen Räumen zu realisieren. ÖPNV-Anschluß durch unmittelbar anliegende Buslinie sowie einen Anschluss an die Regionalbahn (Haltestelle Werkstättenstraße) sind gegeben.
    Gerne beantworten wir erste Fragen telefonisch oder bei einem Beratungsgespräch im Planungsbüro sowie bei einer Ortsbesichtigung auf dem Grundstück.
  • Gesamtfläche (m²): 1.400
  • Nutzfläche (m2): 730
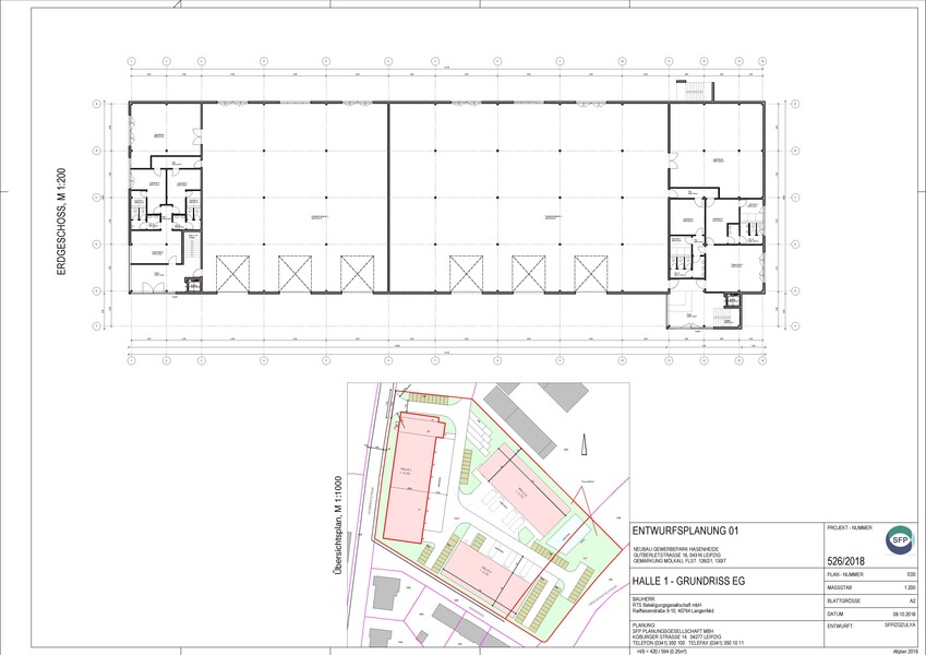
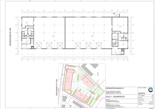
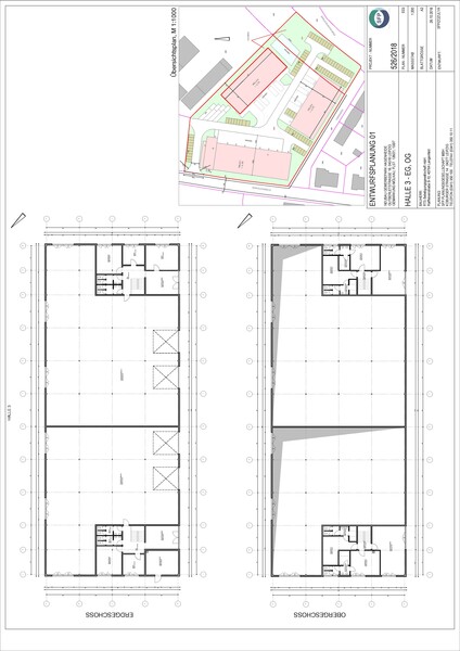
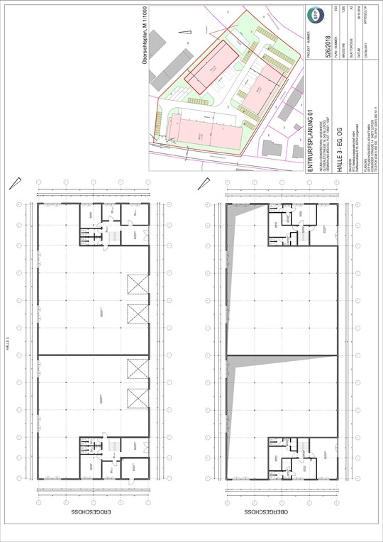
  • Beschreibung: Zwischen dem Leipziger Stadtteil Mölkau und Engelsdorf entwickelt die Unternehmensgruppe STIMMO den Gewerbepark "Hasenheide" in der Gutberletstraße. Interessenten können hier Flächen in schlüsselfertigen Objekten ab ca. 730 m² käuflich erwerben. Noch können individuelle Wünsche berücksichtigt werden!

    Die drei Produktionshallen sind über eine Zufahrt von der Gutberletstraße mit PKW und LKW bis zum Objekt befahrbar. Auf dem Areal sind ausreichen Stellplätze vorgesehen. Die einzelnen Gebäude können individeull geschnitten werden und teilen sich in Bürotrackt und Halle bzw. Produktionsstätte auf. Die Größe kann an die jeweiligen Bedürfnisse des Käufers angepasst werden. Eine komplette Halle bildet über 1.400 m² Produktions- und Lagerfläche ab.
  • Angaben aus Energieausweis: Es handelt sich um eine Projektierung. Daten zum Energieausweis sind noch nicht vorhanden.
  • Immobilie steht zum Kauf
  • Angeboten von:
    Herr Johannes Steinbruch
    Dr. Steinbruch Immobilien GmbH
    Leipzig

    Tel.: 0341 3501010
    E-Mail: immobilien@stimmo.de
    Internet: www.stimmo.de

Ich möchte diesen Beitrag teilen

Ihre Kontaktperson

Bei Fragen hilft Ihnen Matthias Weiland gerne weiter.

T: +49 341 1267-1265
F: +49 341 1267-1422
E: matthias.weiland@leipzig.ihk.de

Aufnahme der IHK-Fahnen vor dem Haus